Photo

Description

Rare sur le secteur ! Situé en rez-de-chaussée d'un immeuble moderne, ce local de 57 m² a été intégralement repensé et rénové par un architecte en août 2023. Alliant esthétisme contemporain et fonctionnalité, il offre un cadre de travail prestigieux et lumineux.

LES POINTS FORTS DU BIEN :

Design & Modernité : Rénovation haut de gamme (2023). Matériaux de qualité, lignes épurées et éclairage optimisé.

Visibilité Maximale : Un linéaire de vitrine extérieur de 9 mètres, offrant une luminosité naturelle exceptionnelle et une excellente visibilité sur rue.

Accessibilité Totale : Local de plain-pied avec accès PMR (Personnes à Mobilité Réduite) aux normes en vigueur.

Stationnement Privé : Inclus 2 places de parking sécurisées au 2ème sous-sol de l'immeuble.

AMÉNAGEMENT :

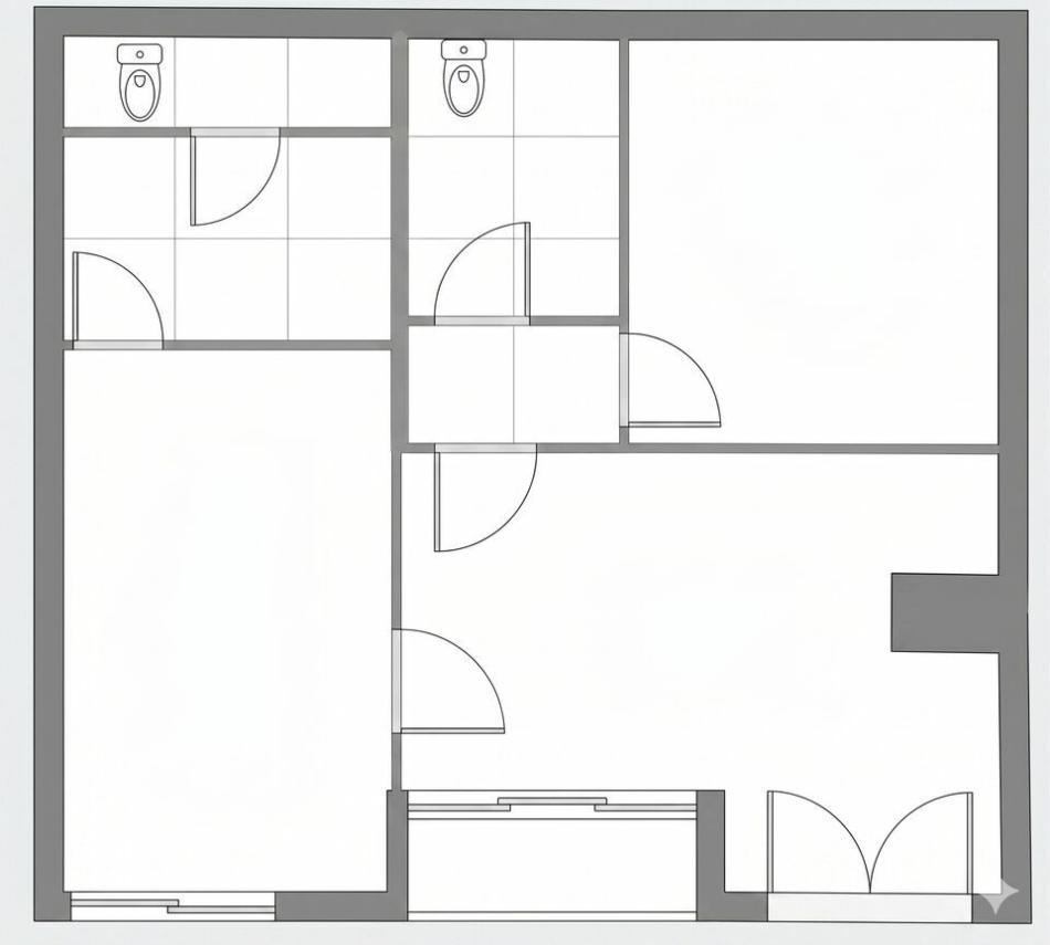
Le plan intelligent permet une séparation fluide des espaces :

Un vaste espace d'accueil ou "Open Space" baigné de lumière.

Des zones de bureaux fermés ou salles de réunion vitrées.

Double sanitaires modernes dont un aux normes PMR.

Espace de stockage ou local technique dédié.

DESTINATION :

Toutes activités possibles (profession libérale, agence de design, showroom, cabinet médical, services tertiaires). Note : Nuisances et restauration non autorisées.

CONDITIONS FINANCIÈRES :

Surface : 57 m²

Charges annuelles : 2 200 €

Prix 500000€ + 30000€ Tva incluse d'honoraires

Disponibilité : Immédiate



Murs libres proche Montparnasse refait à neuf en 2023

Disponibilité : Immédiate

Référence : 034B840895

Conditions financières

Prix de vente 530 000 € H.I. Honoraires inclus

Surface

Surface 57 m²
Divisible
Divisibilité minimum 57 m²

Caractéristiques

Linéaire vitrine 4 mètres linéaires
Linéaire facade 9 mètres linéaires

Accès

Métro
Bus

Boutique

Paris

57 m²

Vente de murs libres

Prix de vente
530 000 €
H.I. Honoraires inclus

Votre cabinet d’affaires
PROMOCOMM

Yann DAUBRESSE

10, rue Auguste Barbier
75011 Paris

y.daubresse@procomm.fr

Biens
similaires